CONCEPT
自然×利便×教育環境が整う上質な街
◆土地約30坪、小学校徒歩6分の好立地
◆閑静な住宅街で公園などの自然が身近に感じれるエリア
◆子育て世代に便利な施設が充実
TOWN PLAN
ACCESS & LOCATION
-
船橋市立三山小学校
徒歩6分/約553m「夢を持ち、たくましく生きる子を育む」を教育目標として掲げています。
-
船橋市立三田中学校
徒歩11分/約906m「知・徳・体の調和を図り、心身共ともに健康で人間性豊かな生徒の育成」 ~自ら学ぶ・自ら行う・自ら鍛える~ を教育目標として掲げています。
-
すずらん幼稚園
徒歩4分/約381m「元気な強い子ども」「きまりを守れる子ども」「のびのびした創造性豊かな子ども」を教育目標として掲げています。
-
ヤマコー 船橋三山
徒歩10分/約802m営業時間は9時~22時まで。広くて明るい店内には生鮮食品やお惣菜、お弁当や飲み物など幅広い商品を揃えていています。駐車場が広いので、車で来てまとめ買いするのにも便利です。
-
イオンタウン 東習志野
車5分/約2100m駐車場や駐輪場が広く、スーパーマーケットや飲食店、複数の店舗があるので、たくさん買い物をする時に便利です。
-
志村医院
徒歩8分/約640m内科・小児科・皮膚科のクリニックです。京成本線「京成大久保駅」から徒歩約15分の場所にあり、専用駐車場が3台分あります。予防接種や健康診断も受け付けています。
-
Big-A 船橋田喜野井店
徒歩15分/約1200m -
マルエイ 薬円台
徒歩15分/約1200m -
サンドラッグ 東習志野店
徒歩19分/約1500m -
MEGAドン・キホーテ 習志野店
徒歩13分/約1000m -
ゆめまち習志野台モール
車10分/約4000m -
イオンモール 津田沼店
車12分/約4800m -
三山2丁目さくら公園
徒歩3分/約271m -
三山公園
徒歩7分/約568m
Googleマップを見る>
カーナビ入力➢千葉県船橋市三山3丁目13番8号 (付近)
EQUIPMENT
IoT対応の便利機能で、家族の暮らしをさらに快適に
-

スマートフォン連動テレビドアホン(録画機能付)
外出先からスマートフォンで来訪者対応可能なテレビドアホン
-

スマートキー(スマホ対応)
リモコンをポケットやカバンの中に入れておけば、ドアハンドルのボタンを押すだけでカギを開け閉めできます。
-

お湯はりを外出先からスマホで操作
IoTに対応している給湯システムを導入しております。
利用すれば、外出先からでもアプリを使ってお湯張りのON/OFFの遠隔操作をすることが可能です。
※スマホ連動を行うため、ネット環境および有償設備の導入が必要となります。 -

スマート宅配ポスト
共働きにも嬉しいスマート宅配ポスト完備で、不在時の荷物の受け取りが可能です。
PHOTO GALLERY
OUTLINE
| 物件名 | ブライトコート三山 |
|---|---|
| 住所 | 千葉県船橋市三山3丁目161番地1 |
| 交通 | 京成本線「京成大久保」駅 徒歩21分 新京成線「薬円台」駅 徒歩28分 総武線「津田沼」駅 バス20分/「二宮神社」停歩5分 |
| 総戸数 | 1戸 |
| 開発面積 | |
| 構造・階建て | 木造2階建て |
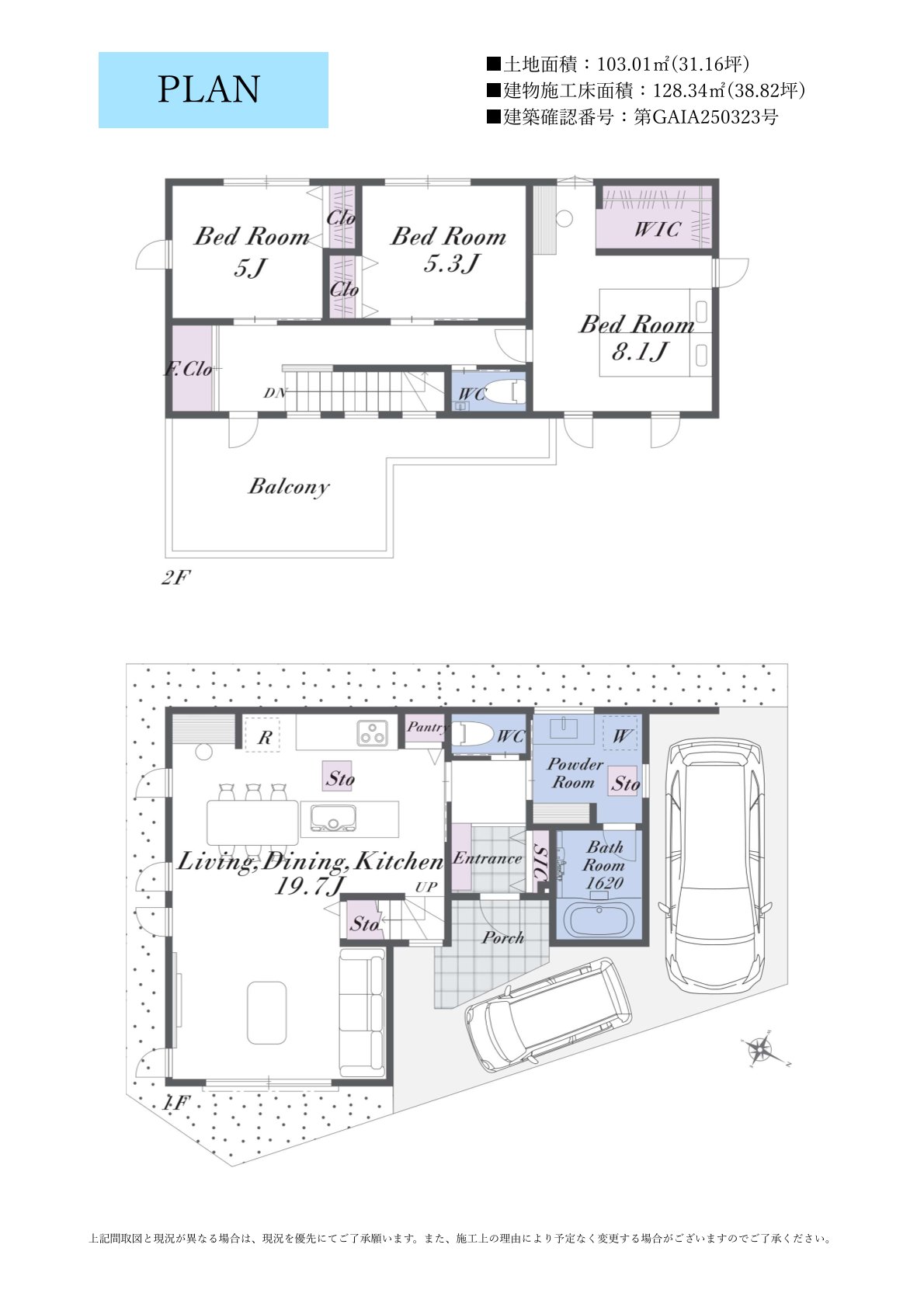
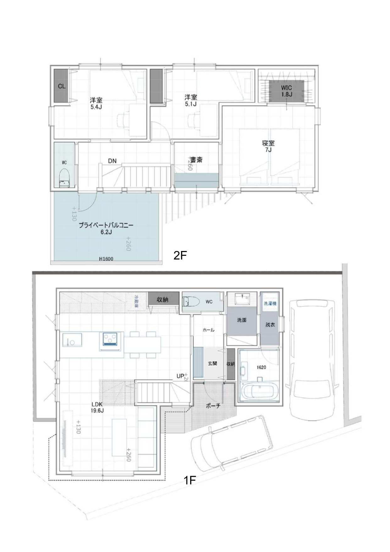
| 敷地面積 | 103.01㎡(31.16坪) |
| 建物面積 | 128.34㎡(38.82坪) |
| 販売戸数 | 1戸 |
|---|---|
| 販売価格 | 3,998 万円 |
| 最多販売価格帯 | 未定 |
| 間取り | 3LDK+カースペース2台 |
| 諸費用 | - |
| 主たる設備等 の概要 |
公営水道・都市ガス・公共下水 |
| 建築確認番号 | 第GAIA250323号 |
|---|---|
| 地目 | 宅地 |
| 土地の権利形態 | 所有権 |
| 用途地域 | 第一種中高層住居専用地域 |
| 私道負担 | 54.48㎡ |
| 道路幅員 | 4m(北東側私道)/接道11.25m、4m(南東側私道) |
| 建ぺい率 | 60% |
| 容積率 | 200% |
| 完成時期 | - |
| 入居時期 | 相談 |
| その他制限事項 | - |
| その他概要・ 特記事項 |
- |
| 取引態様 | 売主 |
| 売主 | 株式会社日建住宅 |
| 販売会社 | 株式会社日建住宅 |
| 情報提供日 | |
| 次回更新日 |




