ブライトコート

千葉県市川市原木3丁目 土地1区画(全1区画)

所在地
千葉県市川市原木3丁目6-24 付近
交 通
東京メトロ東西線「原木中山」駅 徒歩11分
JR総武線「西船橋」駅 徒歩14分
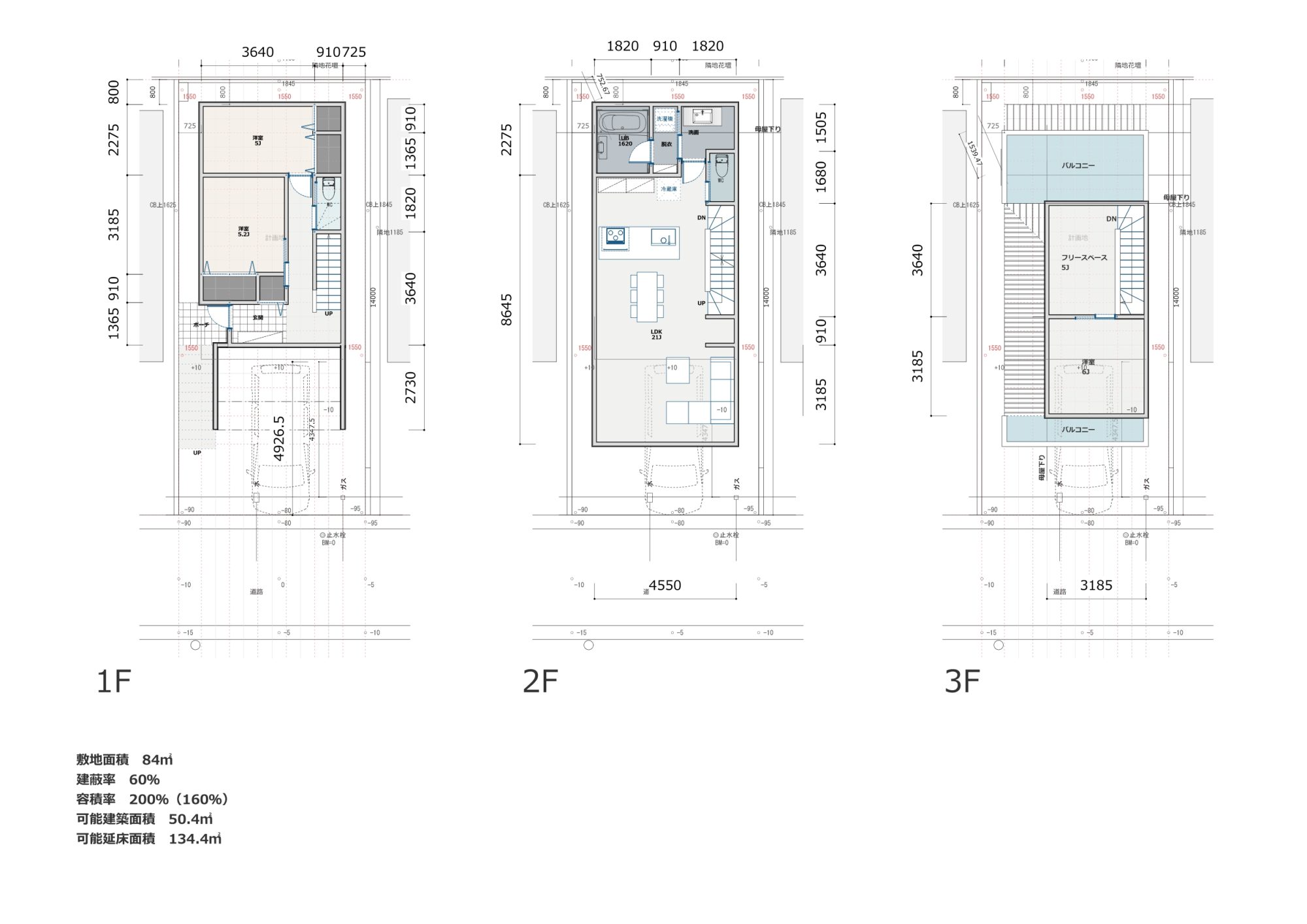
敷地面積
82.63㎡(24.99坪)
建物面積
-
販売価格
未定

CONCEPT

◆5路線利用可能
◆日本橋まで29分
◆大型商業施設が多数点在するエリア
◆建築条件なしの売地。~お好きなハウスメーカーで建築可能~

ACCESS & LOCATION

  • 市川市立二俣小学校
    徒歩13分/約996m

    「未来を見つめ 今をしっかり生きる子の育成」を教育目標として掲げています。

  • 市川市立高谷中学校
    徒歩14分/約1100m

    「心豊かで、たくましく生きる力をもった生徒の育成」を学校教育目標として掲げています。

  • 原木幼稚園
    徒歩10分/約774m

    「幼児の生活を考え、一人一人の個性を伸ばし、自主的で社会性に富んだ、心身共に健やかで、たくましい幼児の育成をめざす」を教育方針として掲げています。

  • ワイズマートディスカ 西船橋本郷店
    徒歩11分/約822m

    駐車場も広く、10:00~21:00まで営業しているので買い物に便利です。野菜類が安くて新鮮で、半額セールをよくやっています。

  • ニッケコルトンプラザ
    車5分/約2100m

    品揃え、店舗数など幅広くなんでも揃います。のんびり買い物や食事、映画をご家族で楽しめます。

  • ドラッグストアセイムス 本郷町店
    徒歩12分/約959m

    営業時間8:00~22:45 ※調剤薬局は月曜日~土曜日 10:00~14:00、15:00~19:00

  • 原木中山クリニック
    徒歩12分/約891m

    原木中山駅から徒歩1分で通院にとても便利な立地です。内科・消化器科(胃カメラ・大腸カメラ)・総合診療科・整形外科・小児科・外科の診療をおこなっております。

  • ピアパーク妙典
    車7分/約2900m

    障がいのある子もない子もみんなで楽しめる「遊具広場」です。子供も大人も遊びを通して多様性を自然と受け入れ、人や社会とつながりが生まれる場所となることを目指しています。

  • セブンイレブン 市川二俣1丁目店 
    徒歩8分/約578m

  • てらおストア 西船橋店
    徒歩12分/約939m

  • ベルク 市川原木店
    徒歩22分/約1700m

  • ドン・キホーテ 原木西船橋店
    徒歩12分/約974m

  • SHOPS
    徒歩19分/約1500m

  • イオン市川妙典店
    車7分/約2800m

  • 市川東病院
    徒歩12分/約951m

  • 小栗原中央公園
    徒歩4分/約274m

Googleマップを見る>千葉県市川市原木3丁目6-24

カーナビ入力➢千葉県市川市原木3丁目6-25 付近

OUTLINE

物件名 千葉県市川市原木3丁目 土地
住所 千葉県市川市原木3丁目6-24 付近
交通 東京メトロ東西線「原木中山」駅 徒歩11分
JR総武線「西船橋」駅 徒歩14分
総区画数 1区画
販売区画数 1区画
販売価格 未定
敷地面積 82.63㎡(24.99坪)
諸費用 -
地目 宅地
土地の権利形態 所有権
土地状況 更地
用途地域 第一種中高層住居専用地域
私道負担 -
道路幅員 -
建ぺい率 60%
容積率 200%
造成完了時期 -
引き渡し時期 相談
その他制限事項 -
その他概要・
特記事項
-
取引態様 売主
売主 株式会社日建住宅
販売会社 株式会社日建住宅
情報提供日
次回更新日